.jpg)
4236 E Cantrell Street, Decatur, IL
$135,000
Pending
3 Beds
1 Bath
1,165 SqFt
0.50 Acres
1 Car Garage
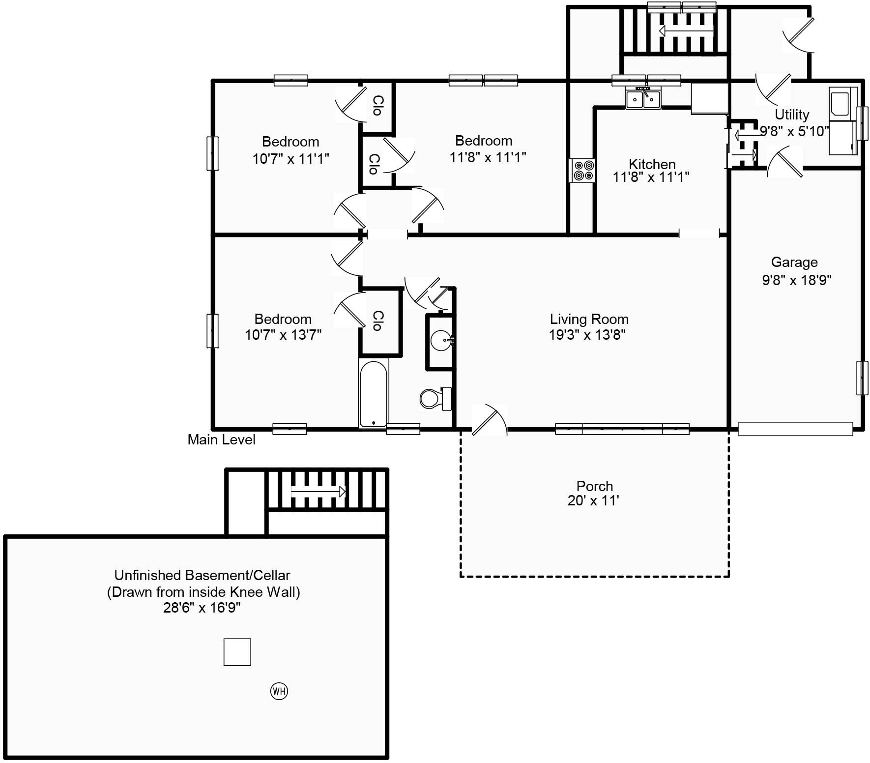
About 4236 E Cantrell Street
Seller is offering a 2-1 mortgage rate buydown with an acceptable offer, making this updated East Side ranch even more affordable! Contact your lender for details on how this temporary buydown can reduce your monthly payments. Beautifully Updated East Side Ranch Backing to Woods! You’ll fall in love the moment you arrive—this move-in ready 3 bed, 1 bath ranch features professional landscaping and a charming covered front porch perfect for morning coffee. Inside, enjoy stylish updates throughout: replacement windows, newer kitchen cabinets, countertops, flooring, updated lighting, and a renovated bathroom—all painted in today’s popular tones. Main floor laundry adds convenience, and the unfinished basement provides tons of storage space. Step out back and discover your own private oasis—a beautifully landscaped new paver patio, new tall vinyl privacy fence, and a peaceful wooded backdrop on 1/2 acre. Don’t miss the additional yard space beyond the fence! Pre-inspected for buyer peace of mind. No homestead exemption currently on file—next bill will reflect approx. $600 reduction in taxes. Don’t wait—homes like this don’t come around often!
Facts & Features
MLS® # | 6254335 |
---|---|
Price | $135,000 |
Cost Per Square Foot | $116 |
Bedrooms | 3 |
Bathrooms | 1.00 |
Full Baths | 1 |
Total Finished Square Feet | 1,165 |
Total Finished Above Grade | 1,165 |
Main | 1,165 |
Basement Total | 470 |
Acres | 0.50 |
Year Built | 1953 |
Type | Single Family |
Sub-Type | Single Family Residence |
Style | Ranch |
Status | Pending |
Taxes | $3,898 |
Tax Year | 2024 |
Community Information
Address | 4236 E Cantrell Street |
---|---|
City | Decatur |
County | Macon |
State | IL |
Zip Code | 62521 |
Amenities
Parking | Attached, Garage |
---|---|
# of Garage Spaces | 1 |
Is Waterfront | No |
Has Pool | No |
Interior
Appliances | Dryer, Gas Water Heater, Oven, Refrigerator, Washer |
---|---|
Heating | Forced Air, Gas |
Cooling | Central Air |
Has Basement | Yes |
Basement | Crawl Space, Partial, Unfinished |
Fireplace | No |
# of Stories | 1 |
Stories | One |
Exterior
Exterior Features | Fence |
---|---|
Lot Dimensions | 78x332 |
Windows | Replacement Windows |
Roof | Asphalt, Shingle |
Construction | Vinyl Siding |
Foundation | Basement, Crawlspace |
School Information
District | Decatur Dist 61 |
---|
Additional Information
Date Listed | August 8th, 2025 |
---|---|
Days on Market | 65 |
Zoning | RES |
Listing Details
Agent | Tony Piraino |
---|---|
Office | Brinkoetter REALTORS® |