.jpg)
363 E Pierson Avenue, Decatur, IL
$89,000
Pending
3 Beds
2 Baths
1,476 SqFt
0.13 Acres
2 Car Garage
About 363 E Pierson Avenue
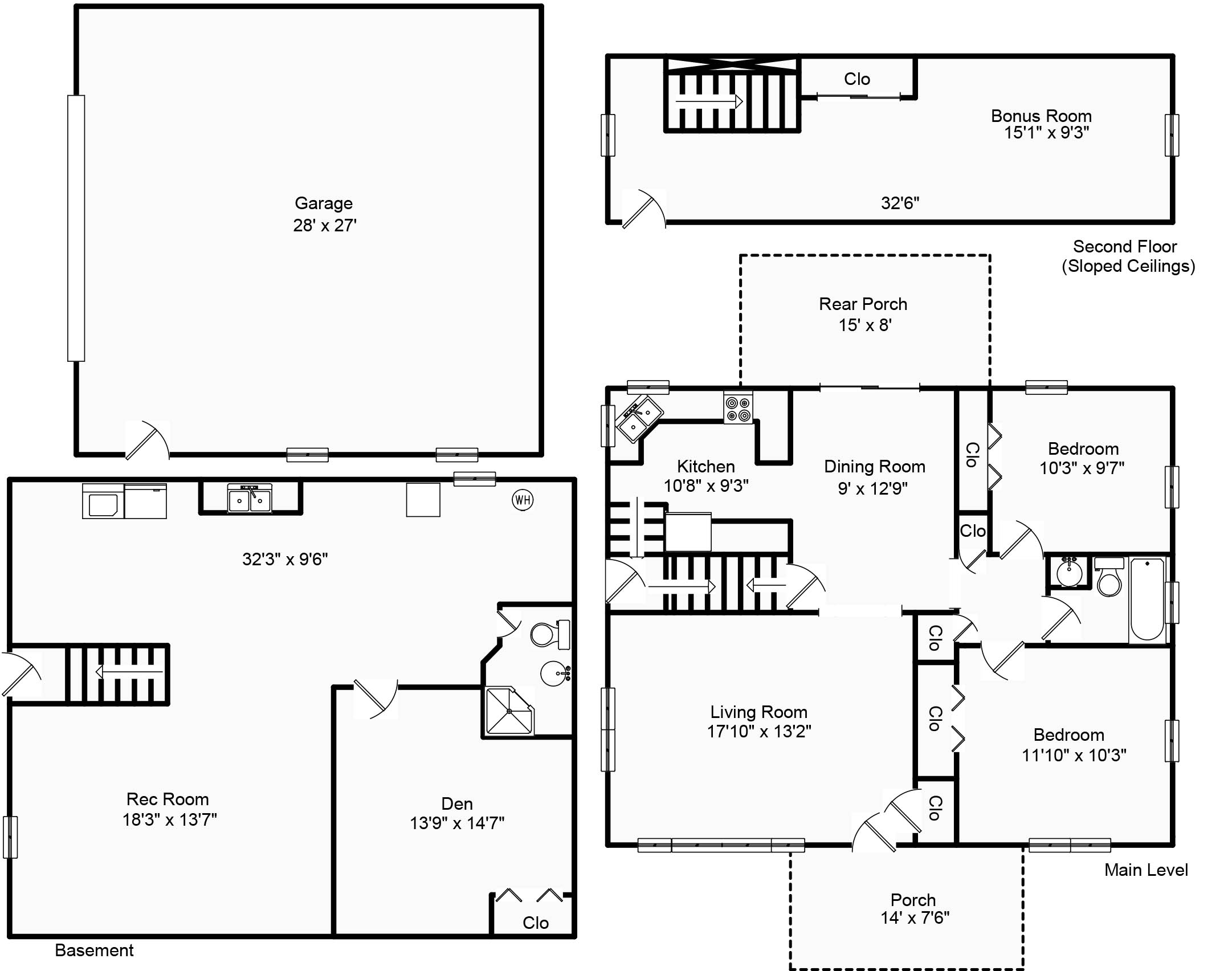
Welcome to 363 E Pierson! This charming yellow-brick home is brimming with potential and awaiting its new owner. Beautifully maintained, the main level offers 2 bedrooms, a warm living room with original hardwood flooring, the eat-in kitchen that has beautiful wooden cabinets with tons of storage and walk out sliding doors to the rear porch that's perfect for enjoying the season's breeze. Upstairs, you'll find a spacious 3rd bedroom with new windows, carpet, and fresh paint. The basement offers massive opportunity for additional living quarters, family/living room, kitchen, bath, and an additional room that could be used as a 4th bedroom. Outside, enjoy the spacious yard and an impressive detached 2-car garage- great for vehicles, storage, hobby space, or a hangout space. You do not want to miss out on this charming move-in ready home. Schedule your showing today!
Facts & Features
MLS® # | 6254875 |
---|---|
Price | $89,000 |
Cost Per Square Foot | $60 |
Bedrooms | 3 |
Bathrooms | 2.00 |
Full Baths | 2 |
Total Finished Square Feet | 1,476 |
Total Finished Above Grade | 1,275 |
Main | 935 |
Upper 1 | 340 |
Basement Total | 935 |
Basement Finished | 201 |
Basement Unfinished | 734 |
Acres | 0.13 |
Year Built | 1950 |
Type | Single Family |
Sub-Type | Single Family Residence |
Style | Bungalow |
Status | Pending |
Taxes | $2,710 |
Tax Year | 2024 |
Community Information
Address | 363 E Pierson Avenue |
---|---|
City | Decatur |
County | Macon |
State | IL |
Zip Code | 62526 |
Amenities
Parking | Detached, Garage |
---|---|
# of Garage Spaces | 2 |
Is Waterfront | No |
Has Pool | No |
Interior
Appliances | Gas Water Heater, Range, Refrigerator |
---|---|
Heating | Forced Air |
Cooling | Central Air |
Has Basement | Yes |
Basement | Unfinished, Full |
Fireplace | No |
# of Stories | 2 |
Stories | Two |
Exterior
Windows | Replacement Windows |
---|---|
Roof | Shingle |
Construction | Brick |
Foundation | Basement |
School Information
District | Decatur Dist 61 |
---|
Additional Information
Date Listed | September 11th, 2025 |
---|---|
Days on Market | 16 |
Zoning | R-3 |
Listing Details
Agent | Arianna Sims |
---|---|
Office | Brinkoetter REALTORS® |